喜訊!榮盛耐材成功入庫「科技型中小企業」
挑戰碳中和的MIDREX直接還原鐵工藝 | 技術前沿
母親節 |對媽媽的愛,不止一天限定
向下扎根 向上生長丨榮盛科技集團2023年感恩家宴圓滿落幕!
浮法玻璃熔窯用?電熔剛玉磚
厲兵秣馬 不負春光 | 榮盛科技集團2023年拓展訓練圓滿結束!
鄭州市工信局、新密市科工信局領導蒞臨榮盛耐材指導工作
新型干法水泥窯耐火材料配置
危廢焚燒處理用耐火材料
SK-34和SK-36耐火磚的區別
垃圾焚燒爐會用到哪些耐火材料,施工費用是多少?
耐火材料在高爐中的應用及爐底砌筑介紹
剛玉磚和鉻剛玉耐火磚的比重各是多少,哪個耐磨?
高爐會用到哪些耐火材料?
當榮盛耐材遇上ChatGPT,這回答亮了!
榮盛科技集團2023年品牌口號征集中!快來亮出你的金句~
熱烈歡迎新密市領導蒞臨榮盛科技集團考察指導工作!
鄭州市二七區領導蒞臨榮盛科技集團調研指導!
鬧元宵 | 換上新衣裳,來榮盛做最靚的仔~
喜訊!榮盛耐材順利通過「國家高新技術企業」復審認定!
喜訊!榮盛耐材被認定為「鄭州市企業技術中心」
熔鋁爐結構及內襯耐火材料損毀解決方法介紹
耐火磚可以耐急冷急熱多少次,如何加強熱震性能?
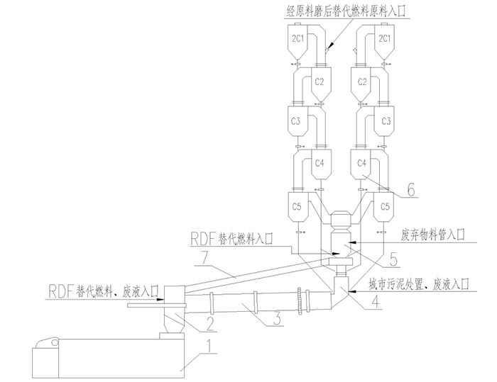
危廢焚燒回轉窯技術及內襯耐材選擇
燒結鎂砂生產原理、性能衡量及種類介紹